Doncaster Road, Rotherham, S65

2 bedroom Flat for sale

£55,000

  • 2 bedrooms
  • 1 bathroom
  • 1 reception
  • Key Information:
  • Council Tax: A
  • Tenure: Leasehold

Key Features

  • Two Bedroom first floor apartment
  • Gas Fired Central Heating
  • Ideal purchase for INVESTORS & FIRST TIME BUYERS!
  • Kitchen / Diner with space for Dining table
  • VIRTUAL TOUR AVAILABLE
  • Clifton Park Location - Close to Town Centre
  • Leasehold / Council Tax Band A / Conservation Area.
  • Unallocated Off Road Parking to Rear or Permit Parking to Front
  • Spacious Bedrooms
  • Well Kept Communal Gardens To Front

Description

VIEW, BID AND BUY! For sale by conditional auction- Starting Bid plus Reservation Fee- Terms and Conditions Apply (See Auctioneer Comments for further information)
Starting Bid: £55,000. Tucked away on the ever popular Lidum Terrace, this charming TWO Bedroom First Floor Apartment offers an ideal opportunity for both INVESTORS and FIRST TIME BUYERS alike. Brimming with character, the property combines comfortable living with a highly convenient location, just moments from Rotherham Town Centre, Parkgate Retail Park, the popular Clifton Park, and excellent transport links.

Situated within a Conservation Area, Lidum Terrace enjoys a peaceful and picturesque setting, renowned for its period charm and well-preserved architecture.

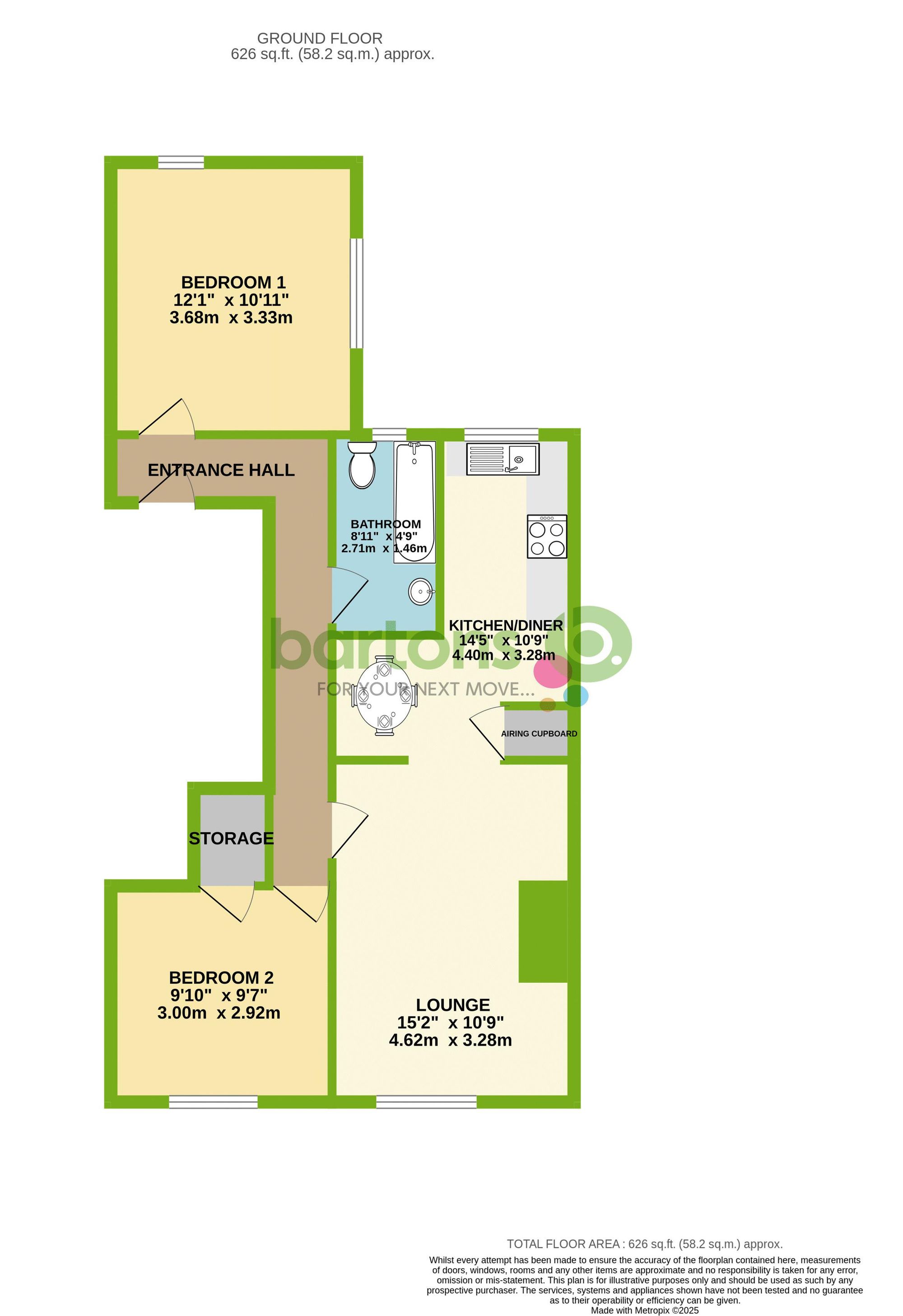
Inside, the accommodation briefly comprises an inviting Entrance Hallway leading to a bright and spacious Lounge, a fitted Kitchen/Diner with built-in oven, space for appliances and dining table, Two generously sized Bedrooms, and a neutral family Bathroom suite.

Outside, residents benefit from unallocated off-road parking to the rear, while on-street permit parking is available to the front. The property also enjoys a well tended communal lawned garden to the front, providing an attractive and welcoming outdoor space.

Early viewing is highly recommended!



Location


Floorplan

Floorplan for Doncaster Road, Rotherham, S65

EPC

EPC for Doncaster Road, Rotherham, S65

Rental Yeild

£ 0
£ 0

Your estimated gross rental yield would be:

0.00%

Bartons Estate Agent

51-53 Moorgate Street, Rotherham,
South Yorkshire, S60 2EY